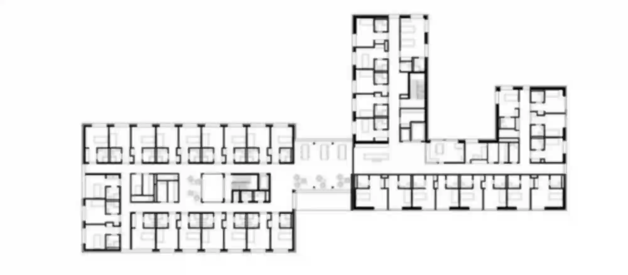
L’extension de l’établissement médico-social La Résidence répond à la demande croissante d'accompagnement et d’assistance à la vie dans une société où la population se fait de plus en plus âgée. La réalisation d’un tel programme représente de nombreux défis. La future exploitation exige une orientation claire et de courtes distances pour l'avenir. La construction doit se faire parallèlement à l’exploitation alors que le processus requiert une relation étroite entre le maître de l’ouvrage et l’architecte. De par l’implantation du nouveau bâtiment, légèrement décalé par rapport à l’existant, la vue imprenable sur les montagnes environnantes dont bénéficient les résidents actuels est préservée. Un nouvel élément, largement vitré, relie le bâtiment existant à son extension et devient le nouveau centre de l’EMS, en y abritant réception, espaces d’accueil ou encore petits salons d’unité aux étages. Des matériaux naturels et des couleurs chaudes définissent le nouveau cadre de vie des résidents de La Résidence. Les travaux de construction de l’extension achevés fin 2019, la deuxième phase, comprenant la rénovation du bâtiment existant, a débuté au printemps 2020.
Aigle
2014 – 21
1. Prix, en cours
Extension et rénovation EMS
Fondation des Maisons de Retraite du District d’Aigle
Translocal Architecture GmbH
Rainer Taepper