Aller au contenu

HES Berne

Lieu

Berne

Année

2019

État

Concours, 7e prix

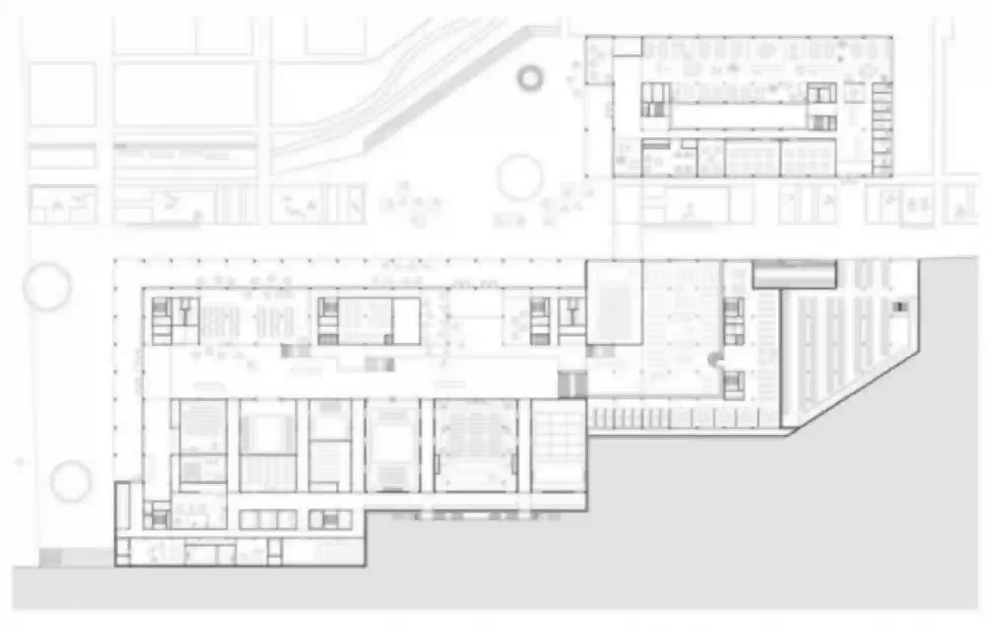
Projet

Nouveau bâtiment de la HES Berne

Maître d'ouvrage

Canton de Berne

Auteur

Translocal Architecture GmbH

Prochain projet: École Fondation Monneresse, Aigle | CH